Home >
Home Plans >
North Fork Lodge
North Fork Lodge
Every aspect of this plan is fully customizable to suit your lifestyle, preferences, and build site. From floor plan layouts and room dimensions to finishes, fixtures, and structural features, our team works with you to tailor every detail to your vision. Ready to make it your own? Contact us today to make this plan perfect for you!
Plan Specifics
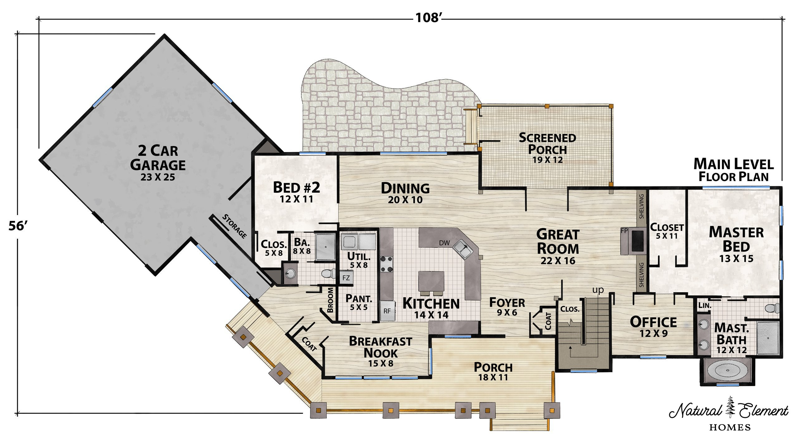
4 Bedrooms
3 Bathrooms
2116 Main Level SF
1082 Upper Level SF
3198 Heated SF
510 Porch & Deck SF
685 Garage SF
4393 Total SF
Plan Tags
Request More Information About This Plan
Fill out my online form.


